Westhal
De Westhal is een rijksmonument en staat in de ENKA-wijk in Ede. ‘De Fietser’ vertrekt in de tweede helft van 2026 uit de Westhal. Daarom krijgt dit grote gebouw een nieuwe bestemming.
De Westhal is onderdeel van een locatie die altijd een belangrijke rol speelde in de economische en sociale ontwikkeling van Ede. Met het vertrek van de Fietser ontstaat een kans om hier weer een centrale plek voor de wijk en Ede te maken. Samen met BOEi, de eigenaar van het gebouw, zoeken we naar een nieuwe invulling van de Westhal. We willen dat het een plek wordt met belangrijke maatschappelijke voorzieningen, voor de wijk en voor Ede. Het college van burgemeester en wethouders ziet kansen voor de Westhal als een plek voor ontmoeting, verbinding, innovatie en talentontwikkeling.
We voerden gesprekken met verschillende partijen over de invulling van de Westhal. Er zijn een paar concrete ideeën die we de komende maanden uit willen werken. Let op: het gaat hier in de meeste gevallen over ideeën. Of deze functies hier ook echt gaan komen, hangt af van meerdere factoren, zoals financiering.
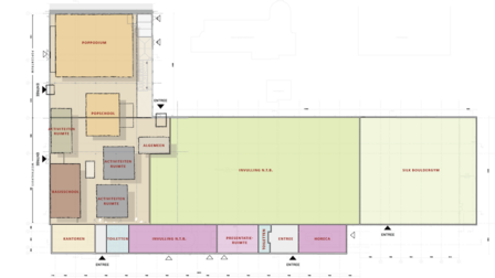
- Podia: In een deel van de Westhal is ruimte voor onder andere twee podia voor optredens (een voor 450 bezoekers en een voor 150 bezoekers).
- Basisschool De Ontdekking: De basisschool in de ENKA-wijk heeft te weinig ruimte. In de Westhal komt ruimte voor twee extra klaslokalen voor De Ontdekking.
- Wijkbewoners: Er komen ruimtes in de Westhal voor bewoners van de ENKA-wijk om elkaar te ontmoeten en activiteiten te organiseren.
- Andere invulling: In de Westhal komt een boulderhal van ongeveer 1.700 vierkante meter. BOEi verwacht dat de boulderhal in maart 2027 opengaat voor bezoekers. Daarnaast is er in de Westhal ruimte voor kantoorruimtes voor bedrijven. Op dit moment worden er gesprekken gevoerd met een mogelijke huurder voor het middengedeelte van de Westhal. Deze partij heeft gevraagd de gesprekken nu nog vertrouwelijk te houden.
Bekijk de plattegrond op een groter formaat.
In de afgelopen tijd zijn veel creatieve ideeën voor invulling van de Westhal onderzocht. Op 14 april 2026 heeft het college van burgemeester en wethouders de resultaten van het haalbaarheidsonderzoek besproken. Het college heeft besloten dat we verder kunnen gaan met de planvorming. Het college heeft nog niet besloten om geld te investeren in de ontwikkeling van de Westhal, dat besluit de nieuwe gemeenteraad later dit jaar (2026). De komende tijd werken we samen met BOEi (de eigenaar van de Westhal) de plannen verder uit. Ook gaan we hierover in gesprek met omwonenden van de Westhal en andere belanghebbenden. Wanneer er een concrete planning is, vindt u deze op onze website.
BOEi (de eigenaar van de Westhal) gaat over de invulling van de Westhal. De invulling moet wel passen binnen het omgevingsplan (bestemmingsplan). BOEi en gemeente Ede gaan graag met omwonenden en andere belanghebbenden in gesprek over de plannen. Daarom organiseren we voor de zomer van 2026 een bijeenkomst. Hier is ook ruimte om andere onderwerpen te bespreken, zoals verkeer en parkeren en het tegengaan van mogelijke overlast.